 |
August-Bebel-Straße 83 • 08412 Werdau |
Tel.: 03761/887752 • Fax: 03761/887753
E-Mail: keller-immobilien@werdau.net
Internet: http://www.keller-immobilienservice.de |
|
| Mietangebot |
|
| 3-Raum-Wohnung |
Ort, Straße Werdau , Kempener Straße |
Wohnfläche 62 m² |
Etage DG |
|
Kaltmiete 476,00 EUR |
Nebenkosten 186,00 EUR |
Miete inkl. NK 662,00 EUR |
Stellplatz 30,00 EUR in TG |
Kaution 2 Monats-Kaltmieten |
Bezug ab nach Renovierung |
Beschreibung Die sonnige Dachgeschosswohnung mit Südwest-Balkon befindet sich in bester Lage des Wohngebietes. Tiefgaragenstellplatz im Haus.
BEZUG NACH FERTIGSTELLUNG RENOVIERUNG (siehe Fotos)
Mehrfamilienhaus Bj. 1997, günstige Verkehrsanbindung nach Werdau, Zwickau und über die Mitteltrasse zur BAB 72.
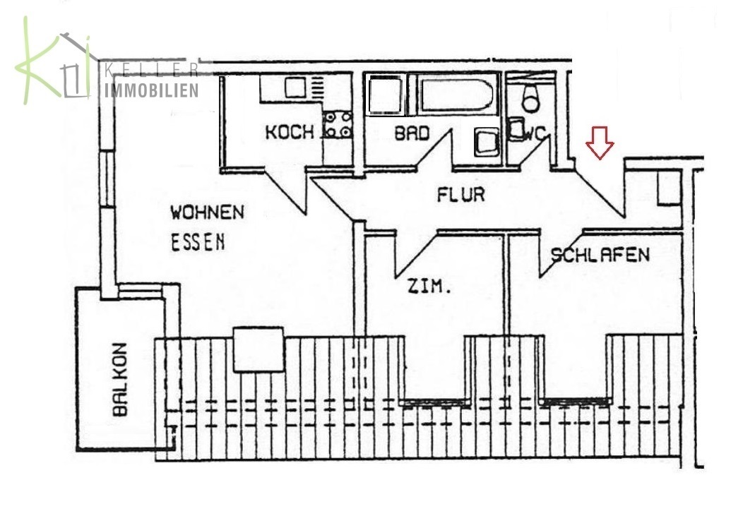
AUSSTATTUNG: - Wohnzimmer mit sonnigem Südwest-Balkon - kleine Küche (innenliegend) - Schlafzimmer - Kinderzimmer - Bad mit Badewanne UND Dusche - separates WC - Flur - Kellerabteil - Wasch- und Trocknerraum im UG - TG-Stellplatz im Haus
Weitere Fotos erhalten Sie gern auf Anfrage!
Endenergieverbrauch: 97,3 kWh/(m²*a)
Energieeffizienzklasse: C
Energieausweis: Energieverbrauchsausweis
Baujahr Gebäude/Wärmeerzeuger: (lt. Ausweis): 1997
Warmwasser enthalten: ja
Heizungsart/Energieträger: Zentralheizung /Gas
Alle Angaben erfolgen ohne Gewähr |
|
 |
| Wohnzimmer mit sonnigem Südwest-Balkon |
 |
| Schlafzimmer |
 |
| Kinderzimmer |
 |
| Flur |
 |
| Wohnzimmer mit sonnigem Südwest-Balkon |
 |
| Grundriss |
 |
| Sonniger Südwest-Balkon am Wohnzimmer |