 |
August-Bebel-Straße 83 • 08412 Werdau |
Tel.: 03761/887752 • Fax: 03761/887753
E-Mail: keller-immobilien@werdau.net
Internet: http://www.keller-immobilienservice.de |
|
| Mietangebot |
|
| 2-Raum-Wohnung |
Ort, Straße Werdau OT Langenhessen, Feldstraße 2 |
Wohnfläche 53 m² |
Etage 1. OG |
|
Kaltmiete 345,00 EUR |
Nebenkosten 170,00 EUR |
Miete inkl. NK 515,00 EUR |
Stellplatz PKW-Stellplätze direkt am Haus inkl. |
Kaution 2 Monats-Kaltmieten |
Bezug ab ab Dezember 2025 |
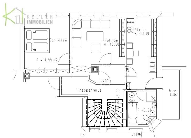
Beschreibung Die Wohnung mit West-Balkon und Einbauküche ist in Werdau im Ortsteil Langenhessen - günstig in Richtung Crimmitschau – gelegen.
Stellplatz hinter dem Haus inklusive, Hof/Gartennutzung mit Wäscheplatz.
AUSSTATTUNG: - Wohnzimmer - separate Wohnküche mit großem West-Balkon - Einbauküche inkl. - Schlafzimmer - Bad/WC mit Badewanne + Dusche und Fenster - Bad mit Waschmaschinenstellplatz - Kellerabteil + Dachbodennutzung - Stellplatz hinter den Haus inkl.
Weitere Fotos erhalten Sie gern auf Anfrage!
Endenergieverbrauch: 107,5 kWh/(m²*a)
Energieeffizienzklasse: D
Energieausweis: Energieverbrauchsausweis
Baujahr Gebäude/Wärmeerzeuger: (lt. Ausweis): 1998
Warmwasser enthalten: ja
Heizungsart/Energieträger: Zentralheizung /Gas
Alle Angaben erfolgen ohne Gewähr |
|
 |
| Separate Wohnküche mit großem West-Balkon |
 |
| Einbauküche inkl. |
 |
| Einbauküche inkl. |
 |
| Bad/WC mit Badewanne + Dusche und Fenster |
 |
| Wohnzimmer |
 |
| Grundriss |
 |
| Schlafzimmer |